CALL US NOW: 0161 697 3040

Hartshill Road, Hartshill, Stoke-On-Trent, ST4 7QU

  • Guide Price £100,000
Hartshill Road, Shelton, Stoke, Stoke-on-Trent, England, ST4 7QU, United Kingdom
Sold
Hartshill Road, Hartshill, Stoke-On-Trent, ST4 7QU
Hartshill Road, Shelton, Stoke, Stoke-on-Trent, England, ST4 7QU, United Kingdom
  • Guide Price £100,000

Overview

  • Commercial, House
  • Property Type
  • 4
  • Bedrooms
  • 2
  • Bathrooms

Description

A GREAT INVESTMENT PROPERTY AVAILABLE FOR SALE BY AUCTION ON MONDAY 28TH APRIL 2025

Ideal purchase to convert to residential living (subject to planning). Located close to the main railway station and a short walk to Staffordshire University.
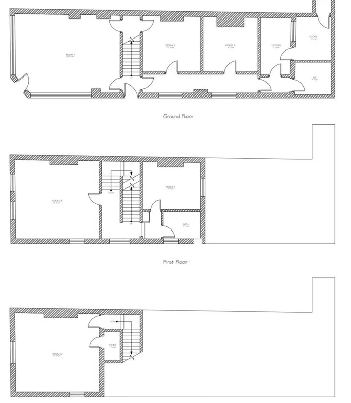
Circa 2000 sqft of accommodation.
Previously used as a commercial business with commercial offices upstairs.
This property comprises of a ground floor retail unit. To the rear of the ground floor office space is available. The first and second floors offer further accommodation and scope for the conversion into residential (subject to planning).

Call to arrange for a viewing.

Details

Updated on February 19, 2026 at 10:33 am
  • Price: Guide Price £100,000
  • Bedrooms: 4
  • Bathrooms: 2
  • Property Type: Commercial, House
  • Property Status: Sold

Mortgage Calculator

Monthly
  • Down Payment
  • Loan Amount
  • Monthly Mortgage Payment
  • Property Tax
  • Home Insurance
  • PMI
  • Monthly HOA Fees
£
%
%
%
£
£
%

Contact Information

View Listings
w3b@dm1n200
  • w3b@dm1n200

Enquire About This Property

0 Review

Sort by:
Leave a Review

Leave a Review